




庆铃救险车(蓝牌)
1、 产品目录
序号 | 产品名称 | 产品型号 | 整车价格(单位:万) |
1 | 庆铃救险车(柴油国六) | CL5040XXH6AYS |
2、 产品简介
我公司设计的抢险排涝车具备厢体空间大,操控性好、维修简便、通过性能强等特点。实现了机动灵活,移动水泵的功能,设备可满足大部分恶劣条件下的紧急抽排水作业,并具备移动电源功能。车辆主要搭载发电设备、排涝设备及其它救援**设备。可广泛应用于应急消防队、公安、医疗卫生、厂矿企业及社区、码头等场所。
整车符合《QC/T453-2002 厢式运输车》、《机动车运行安全技术条件(GB7258-2017)》GB/T 18883-2002、《汽车外廓尺寸限界(GB1589-2016)》、GB50054-95《低压配电设计规范》;整车外廓尺寸、轴荷及质量应符合GB1589-2016《道路车辆外廓尺寸、轴荷及质量限值》的规定;

技术要求
底盘:庆铃
外观颜色: 可选
公告参数
**总质量 | 4495kg |
排水系统 | 1000m³/小时,配2 台便携式超轻型高速潜水泵,单台水泵流量可达500m³/h,总流量1000m³/h,扬程10 米,功率22KW,单泵重量为32KG。 |
发电机组 | 50KW |
轴距 | 2800 mm |
车体尺寸:长×宽×高 | 5360mm×2150 mm×2900 mm |
底盘型号 | QL1040MFHAY |
接近/离去角 | 24º/14º |
轮胎 | 6.50R15LT 10PR |
发动机型号 | D20TCIF64 |
发动机排量 | 1999mL |
排放标准 | 国Ⅵ |
额定功率 | 90KW |
**时速 | 105(km/h) |
驱动型式 | 后驱 |
**小离地间隙 | 390mm |
变 速 箱 | 5档 |
前悬/后悬(mm) | 1015/1545 |
轴数 | 2 |
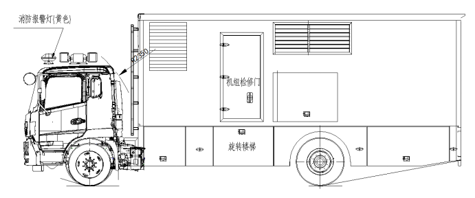
4、平面设计图


5、参考图片(本图片仅供参考,以客户实际订购为准)


序号 | 产品名称 | 品牌 | 规格型号 | 产地 | 单位 | 数量 |
1 | 底盘 | 庆铃 | QL1040MFHAY载货汽车底盘 | 重庆 | 辆 | 1 |
2 | 发电机 | 定制 | 50KW | 湖北 | 台 | 1 |
3 | 便携式潜水泵 | 定制 | 便携式超轻型高速潜水泵,单台水泵流量可达500m³/h,总流量1000m³/h,扬程10 米,功率22KW,单泵重量为32KG | 湖北 | 台 | 2 |
4 | 便携泵**柜 | 定制 | 单泵配超轻型变频**柜,变频器为可移动式,可离发电机组0-500 米以内正常工作。 | 湖北 | 台 | 1 |
5 | 潜水泵 浮圈 | 定制 | 单泵配聚胺脂高强度浮圈,浮圈一体成型,浮圈承受重量为60KG | 湖北 | 台 | 2 |
6 | 排水带 | 定制 | 单泵配40 米排水管(20 米/根),水管直径DN200mm,水管材质为涤纶长丝编织,软管为快速接头连接。 | 湖北 | 套 | 2 |
7 | 厢体 | 定制 | 方形厢体采用抗扭曲设计,厢体防火,阻燃,防雨,防尘,防锈,隔震,长期抗震结构,外层强度高,发电机组散热、电路、电气**系统设计合理,能满足长时间不间断工作要求; | 随州 | 台 | 1 |
8 | 开门 | 定制 | 器材箱左右均设有铝合金卷帘门,轻便可靠、耐用性强。 | 随州 | 套 | 7 |
9 | ** | 定制 | 驾驶室前顶端安装长排工程黄** | 随州 | 个 | 1 |
10 | 外供电源 | 定制 | 箱内配备满足5KW 功率输出、电压380V 插座1 只,220V 通用插座1 只。 | 随州 | 套 | 1 |
11 | 内部照明 | 定制 | 车厢内LED 照明灯 | 随州 | 台 | 1 |
12 | 消防 | 定制 | 配两只手提式干粉灭火器2 只,摆放于车上易拿取处。 | 随州 | 台 | 2 |
13 | 液压支腿 | 定制 | 配两只液压支腿,保障作业平稳性 | 湖北 | 只 | 2 |
14 | 倒车影像 | 定制 | 可视倒车影像,七寸显示屏。 | 随州 | 台 | 1 |