




豪沃厕所车
1、 产品目录
序号 | 产品名称 | 产品型号 | 整车价格(单位:万) |
1 | 豪沃厕所车(柴油国六) | CL5130XCS6AYS |
2、 产品简介
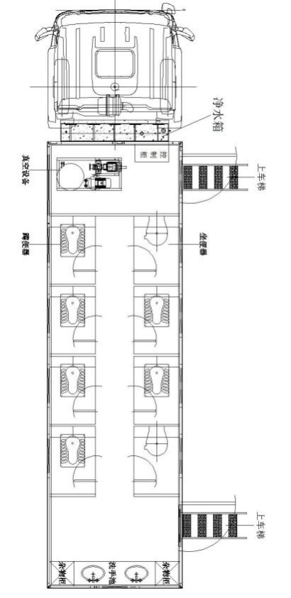
该车主要由底盘、舱体、集便系统、水路系统、电气系统等组成。配备真空便器系统、真空纳污系统、**系统、净水箱、污水箱、洗水池、发电机等专用设备,用于野外应急救援时救援人员如厕洗手。厢体内设有6-8个卫厕间及2个小便池,马桶采用不锈钢304材质,均采用防水材料隔断分隔,保证隐私,卫厕区顶部安装6个电动换气扇、照明灯设备,每个隔间设有**照明灯、衣帽钩、换气窗、纸巾盒、垃圾桶等****。
整车性能符合《机动车运行安全技术条件(GB7258-2017)》、《汽车外廓尺寸限界(GB1589-2016)》、GB 50054-95《低压配电设计规范》;整车外廓尺寸、轴荷及质量应符合GB1589-2016《道路车辆外廓尺寸、轴荷及质量限值》的规定;结构设计依据《QC/T453-2002厢式运输车》、《机动车运行安全技术条件(GB7258-2017)》等相关标准,结合车底盘的的具体指标,以整车承重、前后桥载荷等基本参数不超过规定值为原则,按照标准化、流程化、模块化进行整体完善的设计。

技术要求
底盘:重汽豪沃
外观颜色: 可选
公告参数
**总质量 | 13100kg |
卫厕间 | 6 |
轴距 | 5800 mm |
车体尺寸:长×宽×高 | 10730 mm×2550 mm×3990 mm |
底盘型号 | ZZ5187XXYN711GF1 |
接近/离去角 | 19º/7º |
轮胎 | 295/80R22.5 |
发动机型号 | MC07H.35-60 |
发动机排量 | 7360mL |
排放标准 | 国Ⅵ |
额定功率 | 257KW |
**时速 | 89(km/h) |
驱动型式 | 后驱 |
**小离地间隙 | 425mm |
变 速 箱 | 重汽9档变速箱,带高低档 |
前悬/后悬(mm) | 1430/3300 |
轴数 | 2 |
其他 |
4、平面设计图

左视图

右视图

车辆平面布置图
5、参考图片(本图片仅供参考,以客户实际订购为准)


项目 | 详细配置参数 | 品牌 | 单位 | 数量 |
底盘 | 重汽ZZ5187XXYN711GF1功率:257 马力:350发动机型号:MC07H.35-60 | 豪沃 | 辆 | 1 |
厢体 | 通风天窗(电动) | 程力定制 | 套 | 2 |
抽拉梯(304不锈钢) | 程力定制 | 套 | 1 | |
活动梯(铝合金材质) | 程力定制 | 套 | 2 | |
车内装饰(玻璃钢材质) | 程力定制 | 套 | 1 | |
灭火器(2KG) | 程力定制 | 套 | 2 | |
外观油漆(客户要求定制) | 程力定制 | 套 | 1 | |
专用功能系统 | 真空设备 | 程力定制 | 套 | 1 |
真空蹬便器 | 程力定制 | 套 | 8 | |
洗手池 | 程力定制 | 套 | 1 | |
拖把清洗池 | 程力定制 | 套 | 1 | |
小便池 | 程力定制 | 套 | 2 | |
配电系统 | 发电机(配8kw) | 程力定制 | 套 | 1 |
配电柜 | 程力定制 | 套 | 1 | |
卷线盘(30米)可选装电动 | 程力定制 | 套 | 1 | |
**蓄电池(100A) | 程力定制 | 块 | 2 | |
内照明 | 程力定制 | 个 | 4 | |
外照明 | 程力定制 | 套 | 4 | |
**系统 | 行车记录仪(360°倒车影像、倒车雷达) | 程力定制 | 套 | 1 |
长排**(1.6米) | 程力定制 | 套 | 1 | |
频闪灯 | 程力定制 | 个 | 10 | |
防雷接地系统 | 程力定制 | 套 | 1 | |
油泵 | 程力定制 | 个 | 1 | |
自动充电充气装置 | 程力定制 | 套 | 1 | |
水路系统 | 500L净水箱(304不锈钢) | 程力定制 | 个 | 1 |
500L污水箱(304不锈钢) | 程力定制 | 个 | 1 | |
净水器 | 程力定制 | 套 | 1 | |
水泵 | 程力定制 | 台 | 1 | |
水位显示管 | 程力定制 | 根 | 1 | |
加水软管 | 程力定制 | 米 | 1 |