



汕德卡后双桥装备运输车
1、 产品目录
序号 | 产品名称 | 产品型号 | 整车价格(单位:万) |
1 | 汕德卡后双桥装备运输车(柴油国六) | CLW5260XZBZ6 |
2、 产品简介
我公司设计的装备运输车具备厢体空间大,操控性好、维修简便、通过性能强等特点。主要搭载工程装备,救援设备、救援扶正设备、救援破拆设备、照明设备及其它救援**设备。可广泛应用于应急消防队、公安、医疗卫生、厂矿企业及社区、码头等场所。
整车符合《QC/T453-2002 厢式运输车》、《机动车运行安全技术条件(GB7258-2017)》GB/T 18883-2002、《汽车外廓尺寸限界(GB1589-2016)》、GB50054-95《低压配电设计规范》;整车外廓尺寸、轴荷及质量应符合GB1589-2016《道路车辆外廓尺寸、轴荷及质量限值》的规定;

技术要求
底盘:重汽汕德卡
外观颜色: 可选
公告参数
**总质量 | 26000kg |
轴距 | 4275+1400 mm |
车体尺寸:长×宽×高 | 9625 mm×2550 mm×3950 mm |
底盘型号 | ZZ5266XXYN504GF1K |
接近/离去角 | 16º/8º |
轮胎 | 295/80R22.5 |
发动机型号 | MC07H.35-60 |
发动机排量 | 7360mL |
排放标准 | 国Ⅵ |
额定功率 | 257KW |
**时速 | 89(km/h) |
驱动型式 | 后驱 |
**小离地间隙 | 490mm |
变 速 箱 | 重汽9档变速箱,带高低档 |
前悬/后悬(mm) | 1450/2500 |
轴数 | 3 |
其他 |
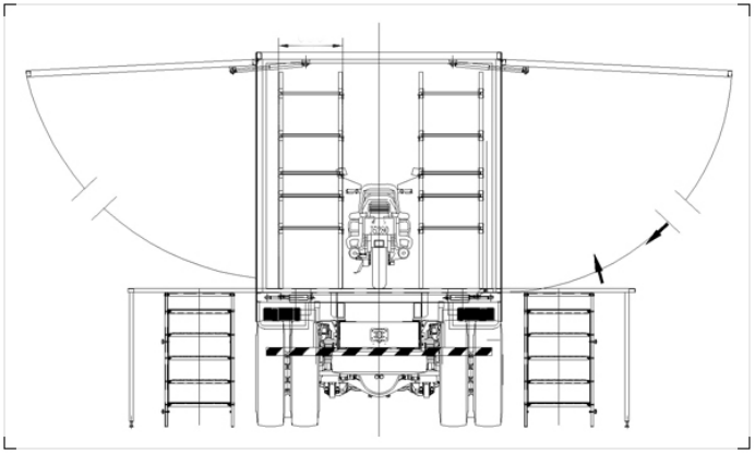
4、平面设计图



5、参考图片(本图片仅供参考,以客户实际订购为准)


序号 | 产品名称 | 品牌 | 规格型号 | 产地 | 单位 | 数量 |
1 | 底盘 | 重汽 | ZZ5266XXYN504GF1K载货汽车底盘 | 济南 | 辆 | 1 |
2 | 厢体 | 定制 | 方形厢体采用抗扭曲设计,器材箱内隔采用铝合金型材搭结结构,牢固可靠,提高空间利用率和可变性,尾部配备液压升降平台承重1.5吨。骨架为优质钢,蒙板为冷板焊接结构 | 随州 | 台 | 1 |
3 | 开门 | 定制 | 器材箱左右均设有铝合金卷帘门,轻便可靠、耐用性强。 | 随州 | 套 | 4 |
4 | ** | 定制 | 驾驶室前顶端安装爆闪** | 随州 | 个 | 1 |
5 | 车厢标志灯具 | 定制 | 车辆两侧上方配有爆闪灯;下方安装侧安全标志灯 | 随州 | 套 | 1 |
6 | 外观油漆 | 定制 | 喷涂原装进口消防红色漆,含车窗贴膜及消防救援车辆外观制式涂装图案等。整车上的仪表、标签等标识使用的“单位”均采用公制单位名称,标识均采用中文标识; | 随州 | 套 | 1 |
7 | 车身厢体翻自动展开关闭系统 | 定制 | 箱体2侧翼展,含油缸、管路、**单元。 | 随州 | 套 | 1 |
8 | 机械支腿 | 定制 | 翼展门配套使用 | 随州 | 个 | 4 |
9 | **报器 | 定制 | **报器功率为100W;**报器、**、爆闪灯电路为**式附加电路,**器件安装在驾驶室内。 | 随州 | 台 | 1 |
10 | 内部照明 | 定制 | 车厢内LED 照明灯 | 随州 | 台 | 1 |
11 | 消防 | 定制 | 配两只手提式干粉灭火器2 只,摆放于车上易拿取处。 | 随州 | 台 | 1 |
12 | 倒车影像 | 定制 | 可视倒车影像,七寸显示屏。 | 随州 | 台 | 1 |
13 | 液压尾板 | 定制 | 凯卓立1T 可翻转液压尾板,货物可通过液压围板上下车 | 随州 | 套 | 1 |
14 | 货架 | 定制 | 内部铝合金货架,承载力好材质轻便,内部空间可根据需求订做 | 随州 | 套 | 1 |